Vendita €435,000
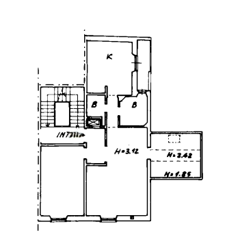
Rapallo Centrale in palazzo d’epoca Ultimo Piano 142 mq. + terrazzo 12 Mq. A circa 200 metri dal Lungomare , in casa d’epoca ben tenuta , ultimo piano su 2 livelli , composto da ingresso , salone con caminetto e zona pranzo , cucina abitabile molto ampia con balcone , 2 camere matrimoniali , 2 bagni , 2 ripostigli . Al piano superiore (unito da un ascensore interno), soffitta formata da 2 camerette con piccolo servizio igienico , terrazzo di circa 12 mq. esposto a sud con vista aperta e panoramica. Possibilità acquisto box auto di 17 mq. a € 65.000 sito a 300 metri dalla abitazione . Le spese condominiali ordinarie annue ammontano a circa 1.200 euro















